 
       
        
             
        
    
2018-08-15 10:32 责任编辑:深圳尚泰装饰 0
科电工程有限公司〈"科电"〉成立于1980年,是具有全球业务网路的康世集团成员,也是亚洲区主要工业物料及设备提供者之一。提供广泛用于电子制造业的生产设备、电子测量系统、耗材和工具,包括高精祝贴装系统、X光检测机、回流焊炉、EMC测仪表、多媒体测仪表、电讯测试仪表、工业物料如焊膏、胶水、胶带、保护膜、绝缘环氧粉、工具、焊台以及维修台等。在不同的细分市场中拥有专业的团队。
— 科电工程有限公司&办公空间装饰设计 —
一家具有全球业务网路的康世集团成员,亚洲区主要工业物料及设备提供者之一的企业,从打造国际化服务到走向互联网前沿,不断扩大和创新。在2018年6月,科电工程邀请深圳尚泰装饰集团为其打造科技与现代并存,服务与办公于一体的现代化空间,致力于输送网路战略部署。
1、设计定位
■提高工作效率。提供一个适合员工舒适的办公空间环境,激发员工创意潜能,催生工作动力,让员工能够保持一个良好的工作状态与舒适的休闲生活。
■进行功能空间分类。合理规划空间,将空间的功能最大化,规划空间与空间的连接,保证一个办公流程的连贯性,动线的灵活性,让空间功能更加完善,增强空间的创造性与现代感。
关键词:现代化、科技感、清新简洁
2、色彩组合

3、平面规划

4、动线分析

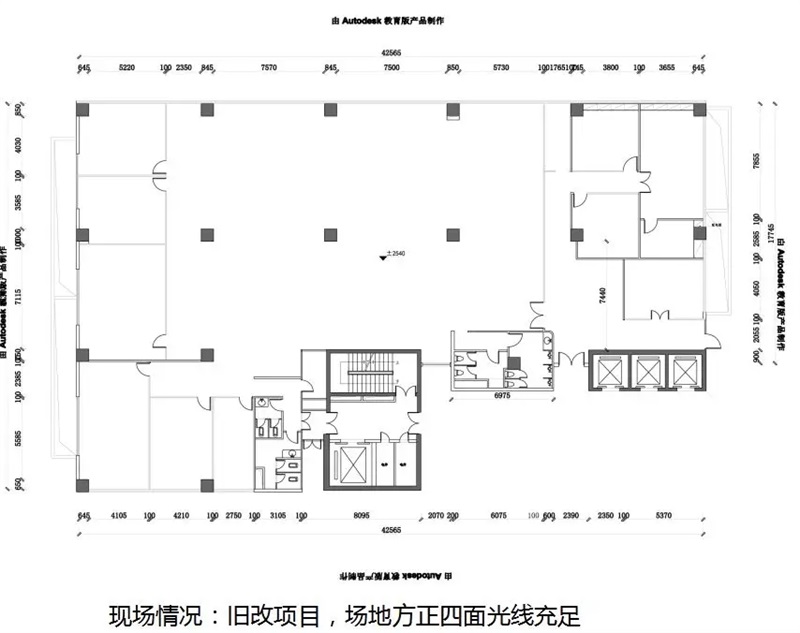
5、原始结构图

6、意向方案
■前厅

前厅的设计突出现代高效简洁的特点,同时反映出办公空间的简洁清新气质。避免繁琐,空间大气,简单,明快,符合现代人的心理需求。
■开放办公区

该公司分为三部门,互相独立但又是一个Team,于是尚泰设计师的设计想法是打造一个愉快开放式办公环境,绿色原生态办公,采用水泥灰地面局部原木色地板点缀,色调白色为主,清新明亮欢快。
■水吧区


主要用以员工休息和放松用餐的区域,所以留白处增添了不少绿色,一是缓解长期盯着电脑的视觉疲劳,二是除了工作更有舒适的生活体验。
■会议室

会议室,平时是为了公司的召开会议,只要是对问题的解决和讨论,设计师使用了大量的白色,来明亮员工在开会的激情,焕发设计人员对公司的管理和设计方案的创新思维,地面使用灰色的地毯来稳定空间的作用和减低在开会时候人员的出入的声音,装饰尽量简洁。
■卫生间俯瞰图

一一一一一一一
本案以现代清新为设计主题,是适用于80、90后的一些年轻人的办公场所,主要以灰白黑为主,以现代风格为基调,运用了整体留白设计,没有过于复杂的造型设计,简单清新明了,是本案设计的一大特色,在家具选择也是选用浅色调的原木饰面家具,墙面增添局部软装搭配,留白中就加有亮点。
而对于科电工程办公空间而言,更承载着企业运营、企业文化、客户合作等重要价值。尚泰设计团队秉持可持续创造价值的设计原则,为科电工程公司打造了充满国际化,走在时尚前端,清新与高效并存的办公空间设计。
一一一一一一
项目名称:福田区科电办公室设计
项目地址:深圳市福田区创新科技广场
设计时间:2018.06
项目设计师:袁 路 、王 平
项目类型:办公室装修设计
项目面积:898m²
设计风格:现代
一一一一一一